Lote en Venta









- Operación
- VENTA
- Tipo
- LOTE
- Importe Venta
- U$S 230000
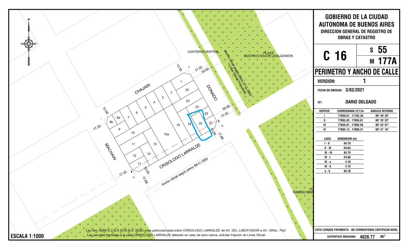
- Dirección
-
Crisologo Larralde 4411
Entre: Donado y Machain
Saavedra. Buenos Aires. - Descripción
- HUGO SALGADO Inmuebles ofrece a la venta:
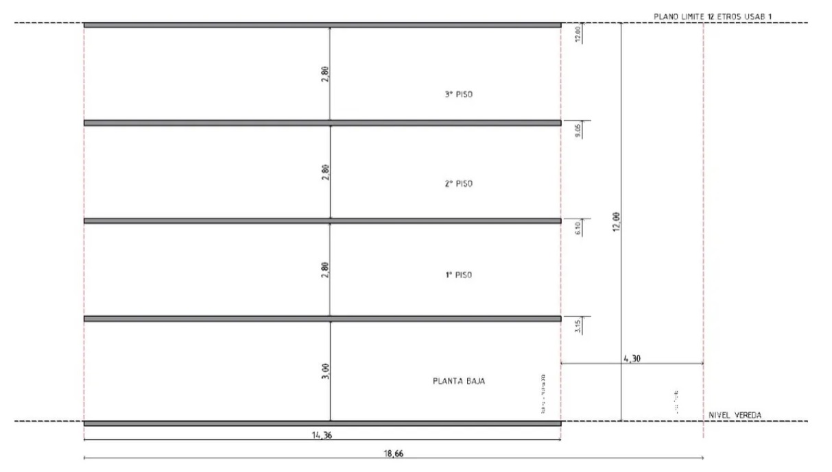
Terreno 8.66x18,60 - Zonificacion USAB 1
- USAB1 - Planta Baja + 3 Pisos
- Altura Plano Limite 12 metros.
- Retiro Line Municipal de 4.30metros
- Superficie Total Construible: 500m2
- Superficie Total Vendible 400m2
- Superficie Geometrica: 18.69x8.66=162m2 en planta Baja
- Uso: Local Comercial en PB 2 UF por piso.
CUCICBA 6.222 - Superficie Total
- 160 m2